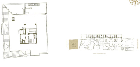
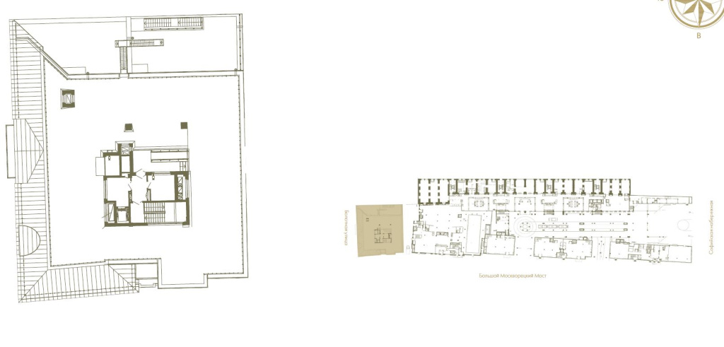
ПСН / Офис
Новокузнецкая, Третьяковская / 10 мин. пеш.
Софийская наб, д 36/10 стр 1/Болотная 10, Москва
- Общее
- Коммерческие условия
| Тип сделки | Продажа |
| Назначение | ПСН |
| Площадь блока, м2 | 1252 |
| Деление от, м2 | - |
| Этаж | Многоярусный блок |
| Состояние помещений | Без отделки |
| Ставка, м2 | По запросу |
| Стоимость за блок | По запросу |
| НДС | Включен в ставку |
Не нашли подходящей площади? Оставьте запрос

