ПСН
Белорусская, Маяковская / 3 мин. пеш.
Грузинский Вал ул, д 28/45, Москва
- Общее
- Коммерческие условия
| Тип сделки | Продажа |
| Назначение | ПСН |
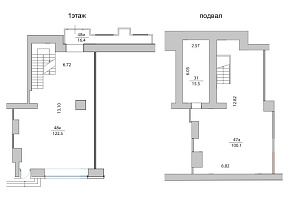
| Площадь блока, м2 | 513 |
| Деление от, м2 | - |
| Этаж | Многоярусный блок |
| Состояние помещений | С отделкой |
| Ставка, м2 | По запросу |
| Стоимость за блок | По запросу |
| НДС | Включен в ставку |
Не нашли подходящей площади? Оставьте запрос