Найти готовый к въезду офис

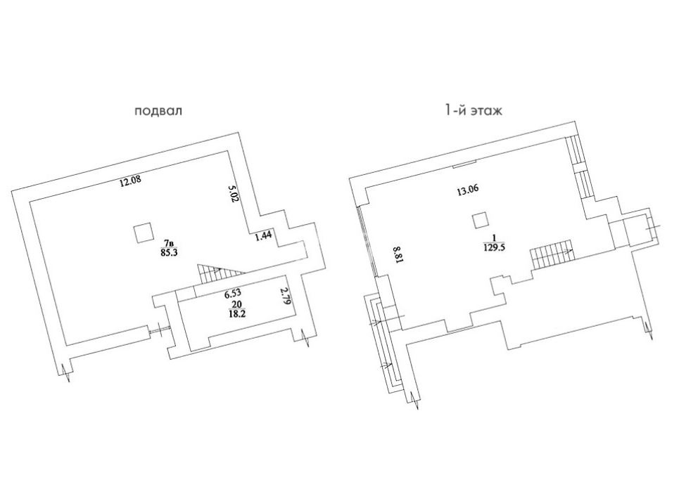
Грузинский Вал ул, д 28/45, Москва, 236 м2

ПСН
Белорусская, Маяковская / 3 мин. пеш. Грузинский Вал ул, д 28/45, Москва
  • Общее
  • Коммерческие условия
Тип сделки Продажа
Назначение ПСН
Площадь блока, м2 236
Деление от, м2 -
Этаж Многоярусный блок
Состояние помещений С отделкой
Ставка, м2 По запросу
Стоимость за блок По запросу
НДС Включен в ставку
Не нашли подходящей площади? Оставьте запрос