Офис / ПСН
Дмитровская, Савеловская / 7 мин. пеш.
Новодмитровская Большая ул, д 23 стр 1, Москва
- Общее
- Коммерческие условия
| Тип сделки | Продажа |
| Назначение | Офис |
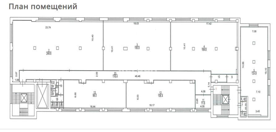
| Площадь блока, м2 | 1000 |
| Деление от, м2 | 300 |
| Этаж | 4 |
| Состояние помещений | С отделкой |
| Ставка, м2 | 200 000 р |
| Стоимость за блок | 60 000 000 р - 200 000 000 р |
| НДС | Включен в ставку |
Не нашли подходящей площади? Оставьте запрос