Найти готовый к въезду офис

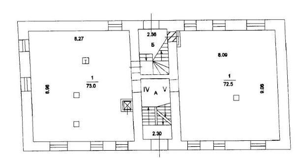
Деловой центр "Стрелецкая слобода", 555 м2

Офис / ПСН
Дмитровская, Савеловская / 7 мин. пеш. Новодмитровская Большая ул, д 23 стр 1, Москва
  • Общее
  • Коммерческие условия
Тип сделки Продажа
Назначение ПСН
Площадь блока, м2 555
Деление от, м2 -
Этаж 1
Состояние помещений С отделкой
Ставка, м2 270 270 р
Стоимость за блок 150 000 000 р
НДС Включен в ставку
Не нашли подходящей площади? Оставьте запрос