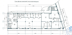
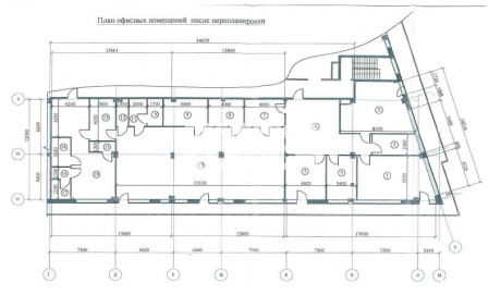
Офис
Павелецкая, Пролетарская / 5 мин. тр.
Дербеневская наб, д 11, Москва
- Общее
- Коммерческие условия
| Тип сделки | Продажа |
| Назначение | Офис |
| Площадь блока, м2 | 611 |
| Деление от, м2 | - |
| Этаж | 2 |
| Состояние помещений | С отделкой |
| Ставка, м2 | 105 552 р |
| Стоимость за блок | 64 523 938 р |
| НДС | Включен в ставку |
Не нашли подходящей площади? Оставьте запрос