Офис
Павелецкая, Пролетарская / 5 мин. тр.
Дербеневская наб, д 11, Москва
- Общее
- Коммерческие условия
| Тип сделки | Аренда |
| Назначение | Офис |
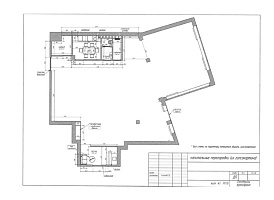
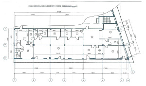
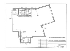
| Площадь блока, м2 | 611 |
| Деление от, м2 | - |
| Этаж | 2 |
| Состояние помещений | С отделкой |
| Ставка, м2/год | 14 500 р |
| Стоимость в месяц | 738 654 р |
| Операционные платежи | Включены в ставку |
| Коммунальные платежи | По факту |
| НДС | Не облагается |
Не нашли подходящей площади? Оставьте запрос