ПСН
Улица Старокачаловская / 5 мин. пеш.
Знаменские Садки ул, д 5Б, Москва
- Общее
- Коммерческие условия
| Тип сделки | Продажа |
| Назначение | ПСН |
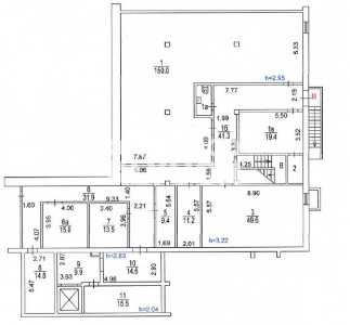
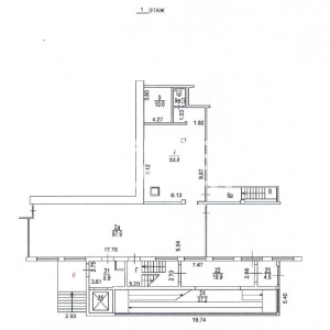
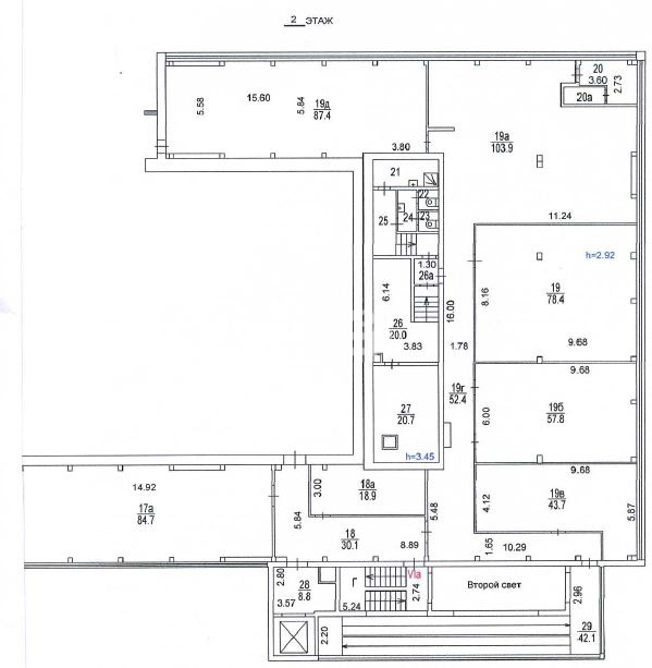
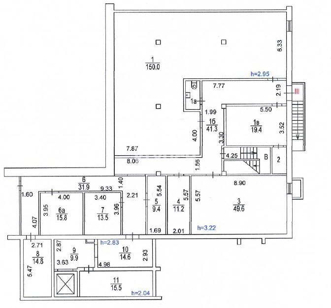
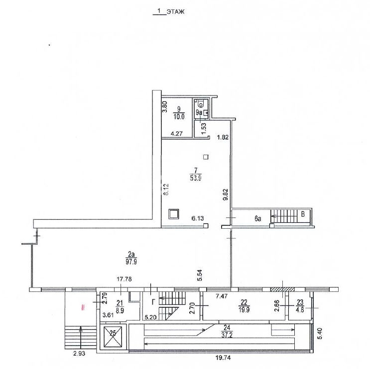
| Площадь блока, м2 | 1600 |
| Деление от, м2 | 218 |
| Этаж | Многоярусный блок |
| Состояние помещений | С отделкой |
| Ставка, м2 | 75 000 р |
| Стоимость за блок | 16 350 000 р - 120 000 000 р |
| НДС | Включен в ставку |
Не нашли подходящей площади? Оставьте запрос















