ПСН
Маяковская / 7 мин. пеш.
Садовая Б. ул, д 5 к 1, Москва
- Общее
- Коммерческие условия
| Тип сделки | Продажа |
| Назначение | ПСН |
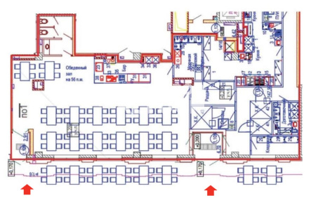
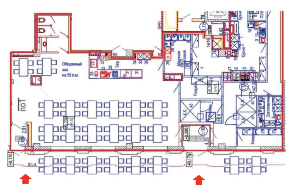
| Площадь блока, м2 | 255 |
| Деление от, м2 | - |
| Этаж | 1 |
| Состояние помещений | С отделкой |
| Ставка, м2 | 509 804 р |
| Стоимость за блок | 130 000 000 р |
| НДС | Включен в ставку |
Не нашли подходящей площади? Оставьте запрос

