Офис
Марксистская, Площадь Ильича / 5 мин. пеш.
Земляной Вал ул, д 68/18 стр 3, Москва
- Общее
- Коммерческие условия
| Тип сделки | Аренда |
| Назначение | Офис |
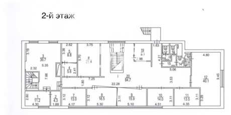
| Площадь блока, м2 | 692 |
| Деление от, м2 | - |
| Этаж | Здание целиком |
| Состояние помещений | С отделкой |
| Ставка, м2/год | 35 000 р |
| Стоимость в месяц | 2 018 333 р |
| Операционные платежи | Включены в ставку |
| Коммунальные платежи | По факту |
| НДС | Не облагается |
Не нашли подходящей площади? Оставьте запрос













