ПСН
Тушинская / 15 мин. пеш.
Волоколамское ш, д 79 к. 1, Москва
- Общее
- Коммерческие условия
| Тип сделки | Продажа |
| Назначение | ПСН |
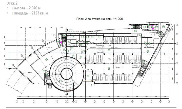
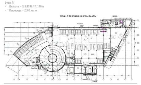
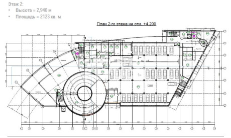
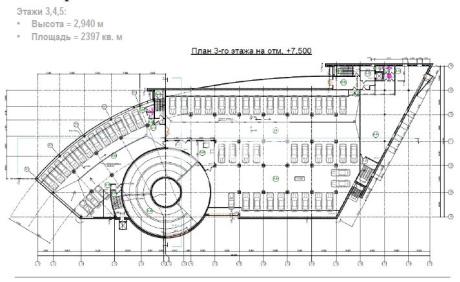
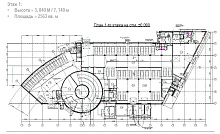
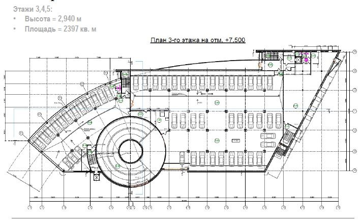
| Площадь блока, м2 | 12500 |
| Деление от, м2 | 2123 |
| Этаж | Здание целиком |
| Состояние помещений | Без отделки |
| Ставка, м2 | По запросу |
| Стоимость за блок | По запросу |
| НДС | Включен в ставку |
Не нашли подходящей площади? Оставьте запрос



