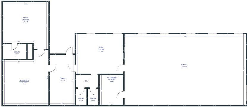
Офис / ПСН
Кропоткинская / 5 мин. пеш.
Волхонка ул, д 9 стр 1, Москва
- Общее
- Коммерческие условия
| Тип сделки | Аренда |
| Назначение | Офис |
| Площадь блока, м2 | 218 |
| Деление от, м2 | - |
| Этаж | 2 |
| Состояние помещений | С отделкой |
| Ставка, м2/год | 44 036 р |
| Стоимость в месяц | 799 987 р |
| Операционные платежи | Включены в ставку |
| Коммунальные платежи | Включены в ставку |
| НДС | Не облагается |
Не нашли подходящей площади? Оставьте запрос
















