Офис
Волоколамская / 15 мин. тр.
Василия Петушкова ул, д 27, Москва
- Общее
- Коммерческие условия
| Тип сделки | Аренда |
| Назначение | Офис |
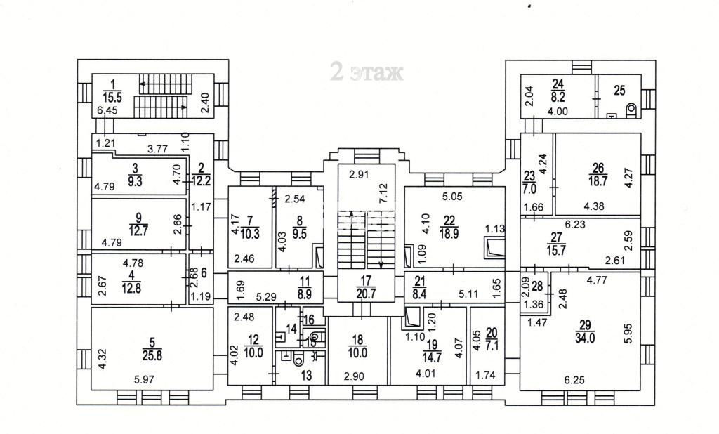
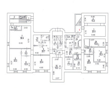
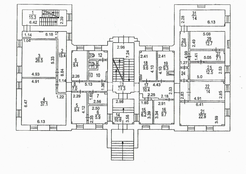
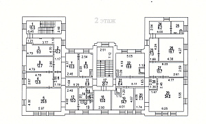
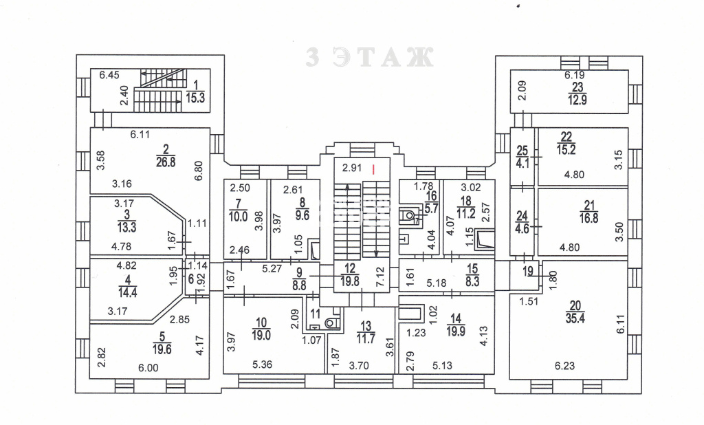
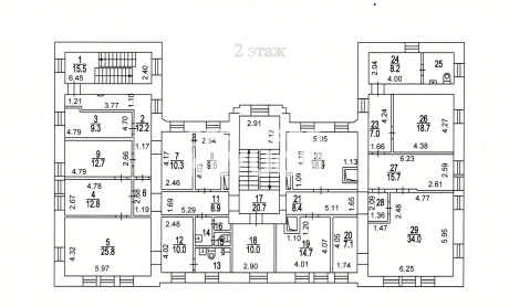
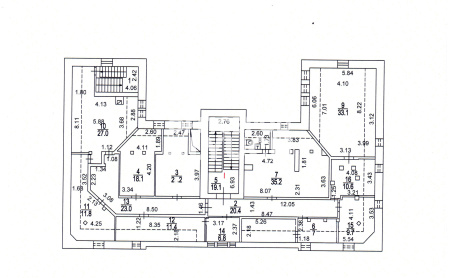
| Площадь блока, м2 | 1505 |
| Деление от, м2 | - |
| Этаж | Здание целиком |
| Состояние помещений | С отделкой |
| Ставка, м2/год | 19 934 р |
| Стоимость в месяц | 2 499 890 р |
| Операционные платежи | Включены в ставку |
| Коммунальные платежи | По факту |
| НДС | Не облагается |
Не нашли подходящей площади? Оставьте запрос




