Найти готовый к въезду офис

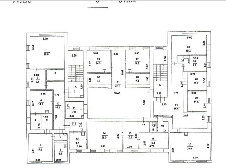
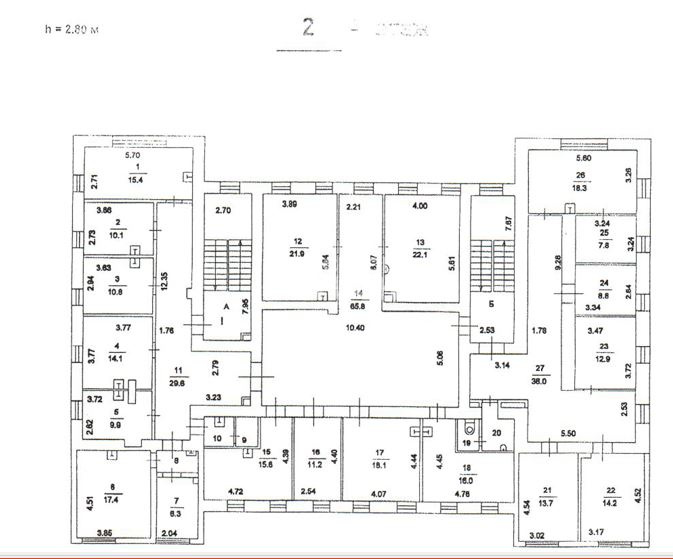
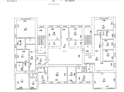
Успенский пер, д 16 стр 1, Москва, 1668 м2

Офис
Чеховская / 7 мин. пеш. Успенский пер, д 16 стр 1, Москва
  • Общее
  • Коммерческие условия
Тип сделки Продажа
Назначение Офис
Площадь блока, м2 1668
Деление от, м2 -
Этаж Здание целиком
Состояние помещений С отделкой
Ставка, м2 287 753 р
Стоимость за блок 480 000 000 р
НДС Включен в ставку
Не нашли подходящей площади? Оставьте запрос