ПСН
Спортивная, Фрунзенская / 10 мин. пеш.
Усачева ул, д 22, Москва
- Общее
- Коммерческие условия
| Тип сделки | Продажа |
| Назначение | ПСН |
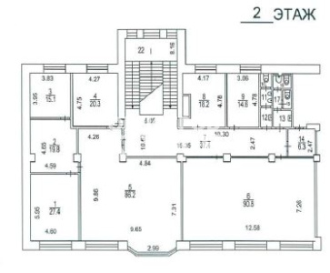
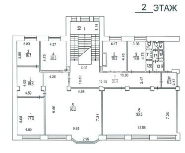
| Площадь блока, м2 | 1928 |
| Деление от, м2 | - |
| Этаж | Здание целиком |
| Состояние помещений | С отделкой |
| Ставка, м2 | 362 958 р |
| Стоимость за блок | 700 000 000 р |
| Операционные платежи | Включены в ставку |
| Коммунальные платежи | Включены в ставку |
| НДС | Включен в ставку |
Не нашли подходящей площади? Оставьте запрос


