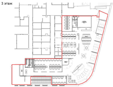
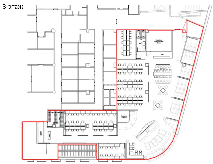
Офис
Сухаревская / 5 мин. пеш.
Сухаревская М. пл, д 12, Москва
- Общее
- Коммерческие условия
| Тип сделки | Аренда |
| Назначение | Офис |
| Площадь блока, м2 | 547 |
| Деление от, м2 | - |
| Этаж | 3 |
| Состояние помещений | Без отделки |
| Ставка, м2/год | 22 800 р |
| Стоимость в месяц | 1 038 730 р |
| Операционные платежи | Фиксированные |
| Коммунальные платежи | По факту |
| НДС | Включен в ставку |
Не нашли подходящей площади? Оставьте запрос









