Найти готовый к въезду офис

Торгово-офисный центр "Лето", 213 м2

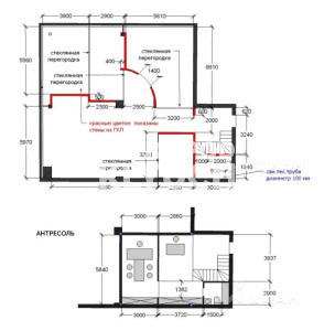
Офис
Проспект Вернадского / 7 мин. пеш. Вернадского пр-кт, д 29, Москва
  • Общее
  • Коммерческие условия
Тип сделки Продажа
Назначение Офис
Площадь блока, м2 213
Деление от, м2 -
Этаж Многоярусный блок
Состояние помещений С отделкой
Ставка, м2 177 736 р
Стоимость за блок 38 000 000 р
НДС Включен в ставку
Не нашли подходящей площади? Оставьте запрос