ПСН
Сухаревская / 3 мин. пеш.
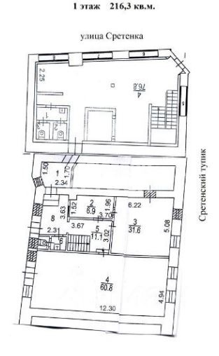
Сретенка ул, д 32, Москва
- Общее
- Коммерческие условия
| Тип сделки | Аренда |
| Назначение | ПСН |
| Площадь блока, м2 | 514 |
| Деление от, м2 | - |
| Этаж | Многоярусный блок |
| Состояние помещений | С отделкой |
| Ставка, м2/год | 51 382 р |
| Стоимость в месяц | 2 200 006 р |
| Операционные платежи | По факту |
| Коммунальные платежи | По факту |
| НДС | Не облагается |
Не нашли подходящей площади? Оставьте запрос


