ПСН
Сретенский бульвар / 3 мин. пеш.
Сретенка ул, д 16/2, Москва
- Общее
- Коммерческие условия
| Тип сделки | Продажа |
| Назначение | ПСН |
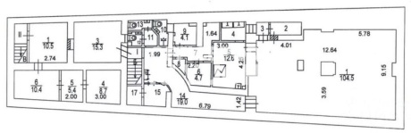
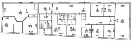
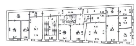
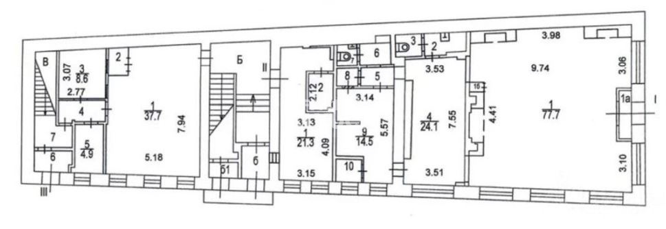
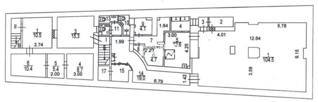
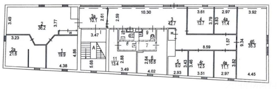
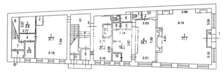
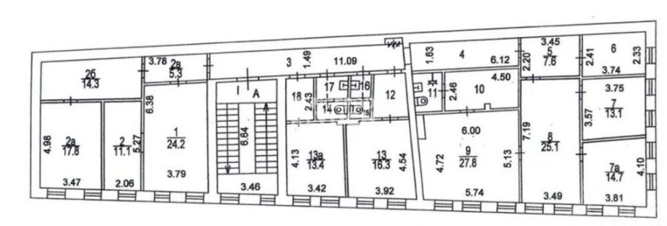
| Площадь блока, м2 | 1333 |
| Деление от, м2 | - |
| Этаж | Здание целиком |
| Состояние помещений | С отделкой |
| Ставка, м2 | 337 584 р |
| Стоимость за блок | 450 000 000 р |
| НДС | Включен в ставку |
Не нашли подходящей площади? Оставьте запрос







