Найти готовый к въезду офис

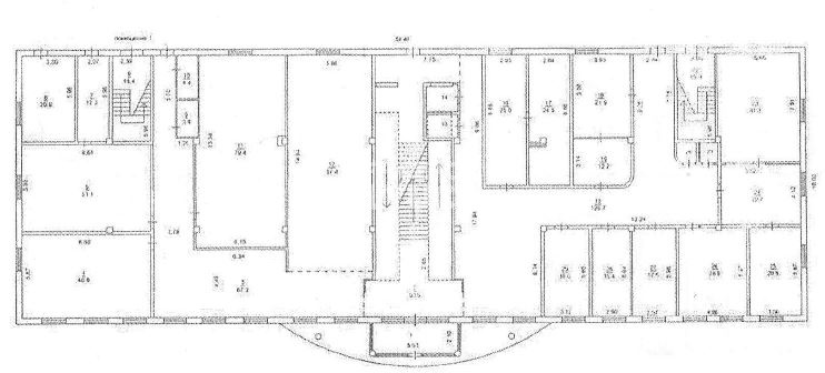
Солнечногорский р-н, деревня Голиково, Шоссейная ул, д 25, Московская, 1873 м2

ПСН
Планерная / более 15 мин. тр. Солнечногорский р-н, деревня Голиково, Шоссейная ул, д 25, Московская
  • Общее
  • Коммерческие условия
Тип сделки Продажа
Назначение ПСН
Площадь блока, м2 1873
Деление от, м2 -
Этаж Здание целиком
Состояние помещений С отделкой
Ставка, м2 85 424 р
Стоимость за блок 160 000 000 р
НДС Включен в ставку
Не нашли подходящей площади? Оставьте запрос