Офис / ПСН
Добрынинская, Серпуховская / 3 мин. пеш.
Серпуховская Б. ул, д 14/13 стр 1, Москва
- Общее
- Коммерческие условия
| Тип сделки | Аренда |
| Назначение | ПСН |
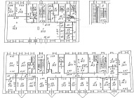
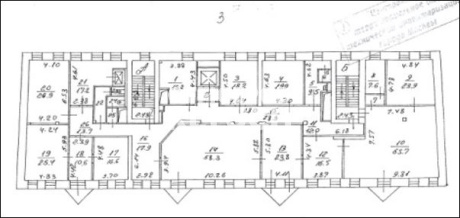
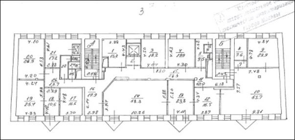
| Площадь блока, м2 | 2005 |
| Деление от, м2 | - |
| Этаж | Здание целиком |
| Состояние помещений | С отделкой |
| Ставка, м2/год | 24 000 р |
| Стоимость в месяц | 4 009 600 р |
| Операционные платежи | Включены в ставку |
| Коммунальные платежи | По факту |
| НДС | Не облагается |
Не нашли подходящей площади? Оставьте запрос









