Офис
Алтуфьево, Бибирево / 15 мин. пеш.
Пришвина ул, д 8 к 2, Москва
- Общее
- Коммерческие условия
| Тип сделки | Аренда |
| Назначение | Офис |
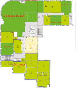
| Площадь блока, м2 | 765 |
| Деление от, м2 | 351 |
| Этаж | 7 |
| Состояние помещений | С отделкой |
| Ставка, м2/год | 16 000 р |
| Стоимость в месяц | 468 000 р - 1 019 467 р |
| Операционные платежи | Включены в ставку |
| Коммунальные платежи | По факту |
| НДС | Включен в ставку |
Не нашли подходящей площади? Оставьте запрос