ПСН
Добрынинская / 5 мин. пеш.
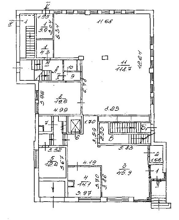
Погорельский пер, д 7 стр 2, Москва
- Общее
- Коммерческие условия
| Тип сделки | Продажа |
| Назначение | ПСН |
| Площадь блока, м2 | 1739 |
| Деление от, м2 | - |
| Этаж | Здание целиком |
| Состояние помещений | С отделкой |
| Ставка, м2 | 6 901 $ |
| Стоимость за блок | 12 000 000 $ |
| НДС | Включен в ставку |
Не нашли подходящей площади? Оставьте запрос





