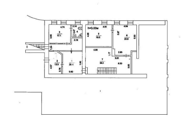
Офис
Китай-город, Курская / 15 мин. пеш.
Покровский б-р, д 16-18 стр 4-4А, Москва
- Общее
- Коммерческие условия
| Тип сделки | Аренда |
| Назначение | Офис |
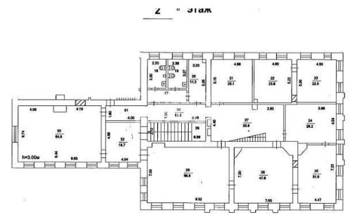
| Площадь блока, м2 | 607 |
| Деление от, м2 | - |
| Этаж | 1 |
| Состояние помещений | С отделкой |
| Ставка, м2/год | 23 723 р |
| Стоимость в месяц | 1 199 988 р |
| Операционные платежи | Включены в ставку |
| Коммунальные платежи | По факту |
| НДС | Не облагается |
Не нашли подходящей площади? Оставьте запрос


