Офис
Каховская, Севастопольская / 12 мин. пеш.
Балаклавский пр-кт, д 28Б стр 1, Москва
- Общее
- Коммерческие условия
| Тип сделки | Аренда |
| Назначение | Офис |
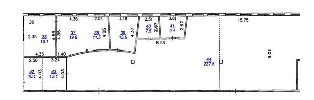
| Площадь блока, м2 | 330 |
| Деление от, м2 | - |
| Этаж | 2 |
| Состояние помещений | С отделкой |
| Ставка, м2/год | 14 000 р |
| Стоимость в месяц | 385 000 р |
| Операционные платежи | Включены в ставку |
| Коммунальные платежи | По факту |
| НДС | Не облагается |
Не нашли подходящей площади? Оставьте запрос










