Офис
Белорусская / 5 мин. пеш.
Тверская-Ямская 1-я ул, д 21, Москва
- Общее
- Коммерческие условия
| Тип сделки | Аренда |
| Назначение | Офис |
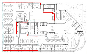
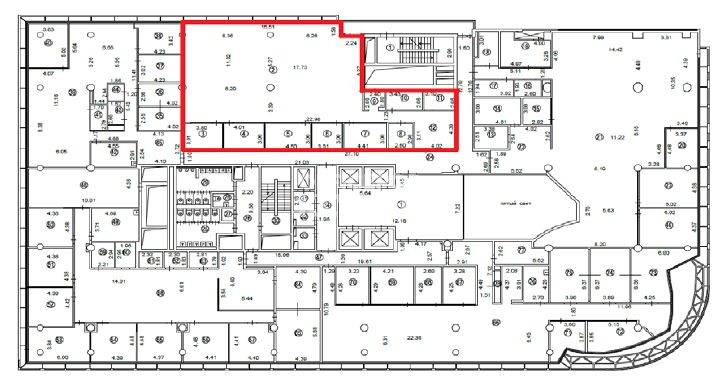
| Площадь блока, м2 | 411 |
| Деление от, м2 | - |
| Этаж | 5 |
| Состояние помещений | С отделкой |
| Ставка, м2/год | 600 $ |
| Стоимость в месяц | 20 550 $ |
| Операционные платежи | Фиксированные |
| Коммунальные платежи | По факту |
| НДС | Включен в ставку |
Не нашли подходящей площади? Оставьте запрос







