Найти готовый к въезду офис

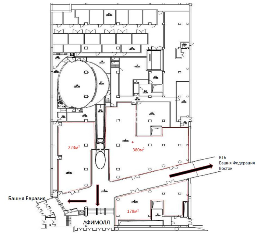
МФК "Федерация"/ Башня "Восток", 223 м2

ПСН / Офис
Выставочная, Международная / 5 мин. пеш. Пресненская наб, д 12, Москва
  • Общее
  • Коммерческие условия
Тип сделки Продажа
Назначение ПСН
Площадь блока, м2 223
Деление от, м2 -
Этаж Подвал
Состояние помещений Без отделки
Ставка, м2 785 000 р
Стоимость за блок 175 055 000 р
НДС Включен в ставку
Не нашли подходящей площади? Оставьте запрос