ПСН
Киевская / 15 мин. пеш.
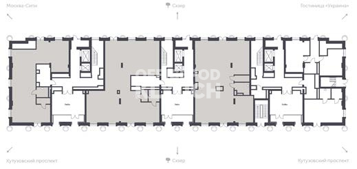
Кутузовский пр-кт, д 12, Москва
- Общее
- Коммерческие условия
| Тип сделки | Продажа |
| Назначение | ПСН |
| Площадь блока, м2 | 268 |
| Деление от, м2 | - |
| Этаж | 1 |
| Состояние помещений | Без отделки |
| Ставка, м2 | По запросу |
| Стоимость за блок | По запросу |
| НДС | Включен в ставку |
Не нашли подходящей площади? Оставьте запрос