Офис
Хорошёво / 15 мин. тр.
Карамышевская наб, д 37, Москва
- Общее
- Коммерческие условия
| Тип сделки | Продажа |
| Назначение | Офис |
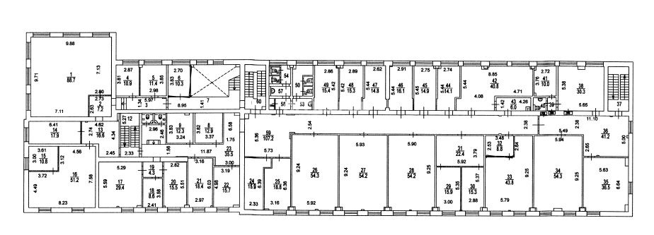
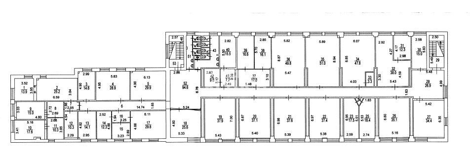
| Площадь блока, м2 | 4557 |
| Деление от, м2 | - |
| Этаж | Здание целиком |
| Состояние помещений | С отделкой |
| Ставка, м2 | 131 666 р |
| Стоимость за блок | 600 000 000 р |
| НДС | Включен в ставку |
Не нашли подходящей площади? Оставьте запрос



