ПСН
Андроновка / 5 мин. пеш.
Энтузиастов 2-я ул, д 5 корп 18, Москва
- Общее
- Коммерческие условия
| Тип сделки | Продажа |
| Назначение | ПСН |
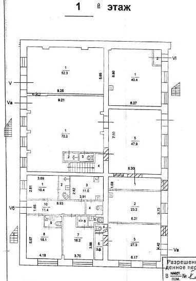
| Площадь блока, м2 | 528 |
| Деление от, м2 | - |
| Этаж | 1 |
| Состояние помещений | С отделкой |
| Ставка, м2 | 200 000 р |
| Стоимость за блок | 105 600 000 р |
| НДС | Включен в ставку |
Не нашли подходящей площади? Оставьте запрос