ПСН
Лермонтовский проспект / более 15 мин. тр.
Дмитриевского ул, д 9А, Москва
- Общее
- Коммерческие условия
| Тип сделки | Аренда |
| Назначение | ПСН |
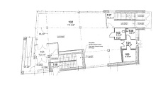
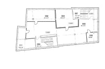
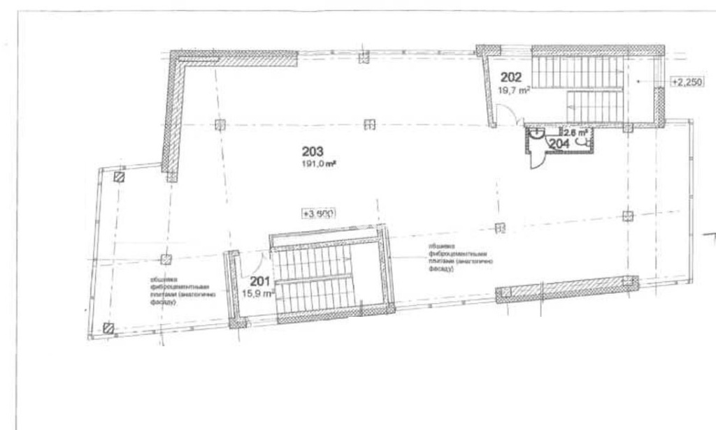
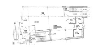
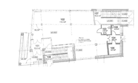
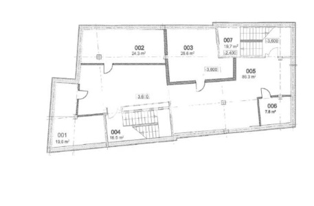
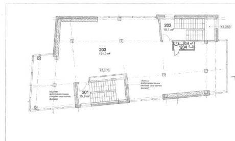
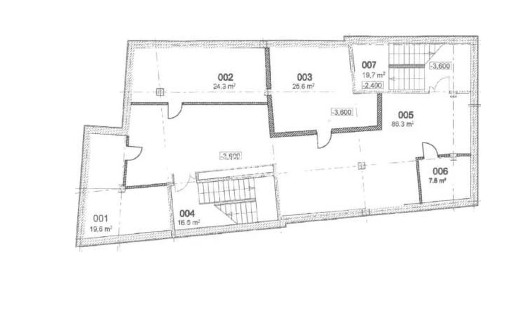
| Площадь блока, м2 | 620 |
| Деление от, м2 | - |
| Этаж | Здание целиком |
| Состояние помещений | Без отделки |
| Ставка, м2/год | 14 516 р |
| Стоимость в месяц | 749 993 р |
| Операционные платежи | Включены в ставку |
| Коммунальные платежи | По факту |
| НДС | Не облагается |
Не нашли подходящей площади? Оставьте запрос







