Офис
Добрынинская, Серпуховская / 5 мин. пеш.
Пятницкая ул, д 74 стр 1, Москва
- Общее
- Коммерческие условия
| Тип сделки | Аренда |
| Назначение | Офис |
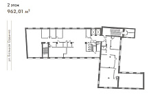
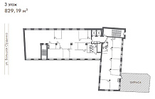
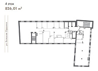
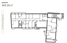
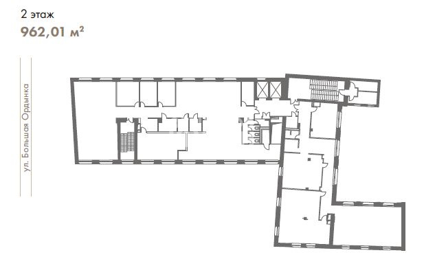
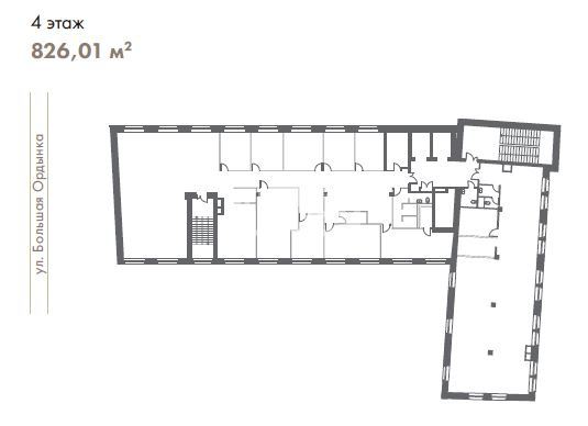
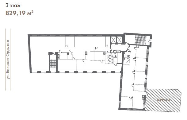
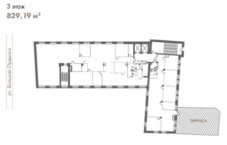
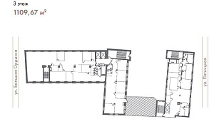
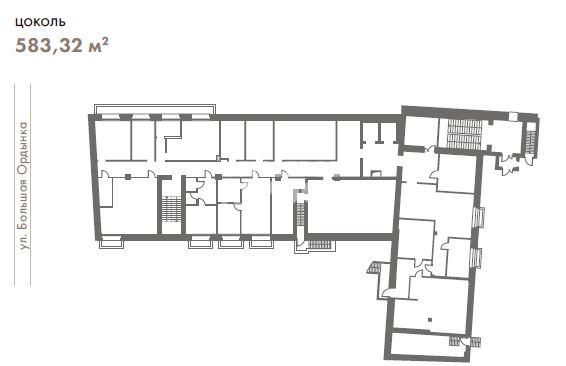
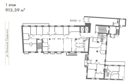
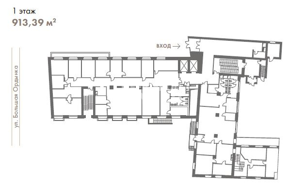
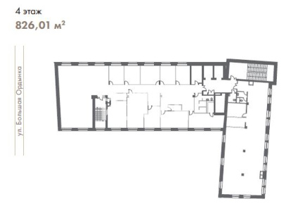
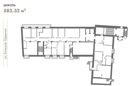
| Площадь блока, м2 | 4114 |
| Деление от, м2 | - |
| Этаж | Строение |
| Состояние помещений | С отделкой |
| Ставка, м2/год | 50 000 р |
| Стоимость в месяц | 17 141 250 р |
| Операционные платежи | Включены в ставку |
| Коммунальные платежи | По факту |
| НДС | Включен в ставку |
Не нашли подходящей площади? Оставьте запрос









