Офис
Маяковская, Пушкинская / 5 мин. пеш.
Дегтярный пер, д 5 стр 2, Москва
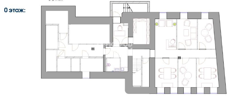
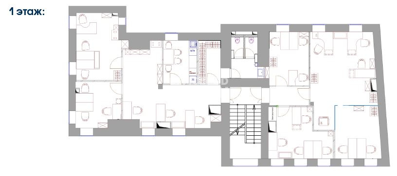
- Общее
- Коммерческие условия
| Тип сделки | Аренда |
| Назначение | Офис |
| Площадь блока, м2 | 735 |
| Деление от, м2 | - |
| Этаж | Здание целиком |
| Состояние помещений | С отделкой |
| Ставка, м2/год | 48 979 р |
| Стоимость в месяц | 2 999 964 р |
| Операционные платежи | Включены в ставку |
| Коммунальные платежи | По факту |
| НДС | Включен в ставку |
Не нашли подходящей площади? Оставьте запрос








