ПСН
Парк культуры / 10 мин. пеш.
Бурденко ул, д 3, Москва
- Общее
- Коммерческие условия
| Тип сделки | Продажа |
| Назначение | ПСН |
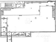
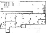
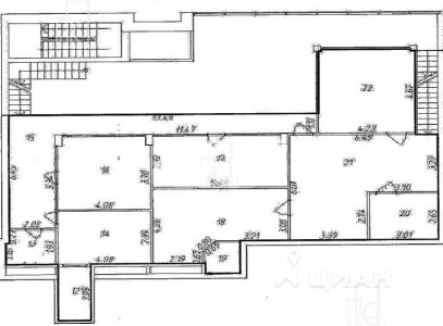
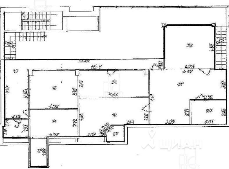
| Площадь блока, м2 | 400 |
| Деление от, м2 | - |
| Этаж | 1 |
| Состояние помещений | С отделкой |
| Ставка, м2 | 634 188 р |
| Стоимость за блок | 253 675 200 р |
| НДС | Включен в ставку |
Не нашли подходящей площади? Оставьте запрос






