Найти готовый к въезду офис

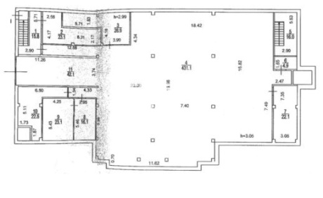
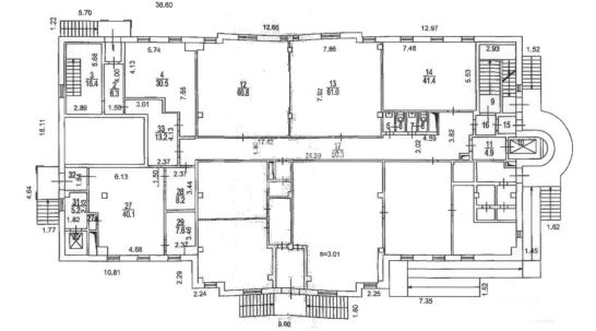
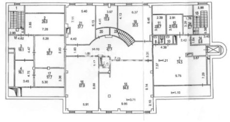
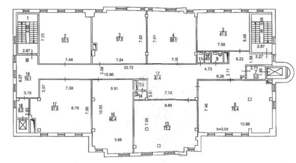
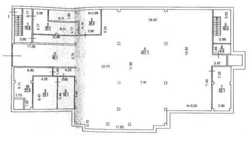
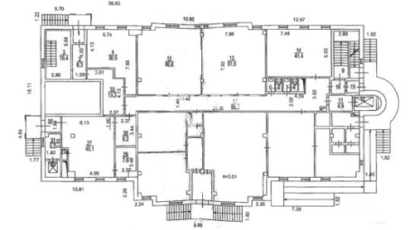
Бизнес центр "Трофимовский", 3540 м2

Офис
Автозаводская МЦК / 7 мин. пеш. Трофимова ул., д. 14 стр 1, Москва
  • Общее
  • Коммерческие условия
Тип сделки Продажа
Назначение Офис
Площадь блока, м2 3540
Деление от, м2 -
Этаж Здание целиком
Состояние помещений С отделкой
Ставка, м2 138 418 р
Стоимость за блок 490 000 000 р
Операционные платежи Включены в ставку
Коммунальные платежи Включены в ставку
НДС Включен в ставку
Не нашли подходящей площади? Оставьте запрос