Офис
Аэропорт, Динамо / 12 мин. пеш.
8 Марта ул, д 1 стр 12, Москва
- Общее
- Коммерческие условия
| Тип сделки | Продажа |
| Назначение | Офис |
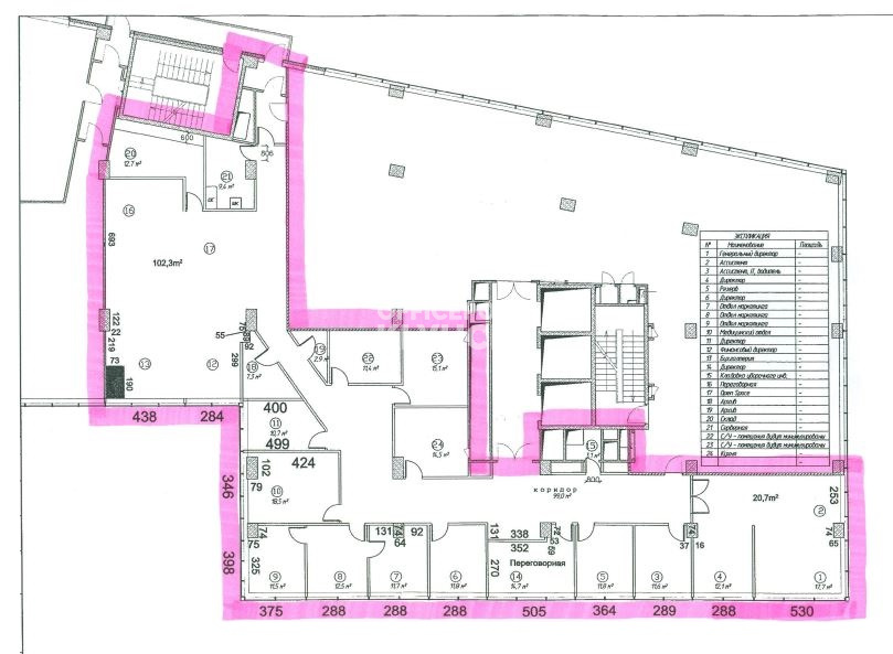
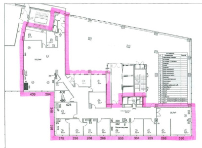
| Площадь блока, м2 | 473 |
| Деление от, м2 | - |
| Этаж | 5 |
| Состояние помещений | С отделкой |
| Ставка, м2 | 3 485 $ |
| Стоимость за блок | 1 650 000 $ |
| НДС | Включен в ставку |
Не нашли подходящей площади? Оставьте запрос








