Найти готовый к въезду офис

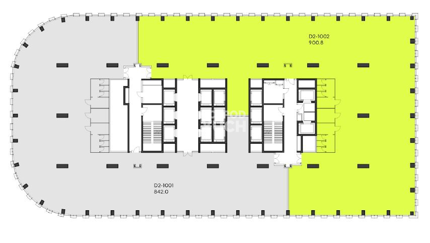
Бизнес-центр "STONE Савеловская", 900 м2

ПСН / Офис
Савеловская / 15 мин. пеш. Двинцев ул, д 3, Москва
  • Общее
  • Коммерческие условия
Тип сделки Продажа
Назначение Офис
Площадь блока, м2 900
Деление от, м2 -
Этаж 10
Состояние помещений Без отделки
Ставка, м2 254 000 р
Стоимость за блок 228 803 200 р
НДС Включен в ставку
Не нашли подходящей площади? Оставьте запрос