Найти готовый к въезду офис

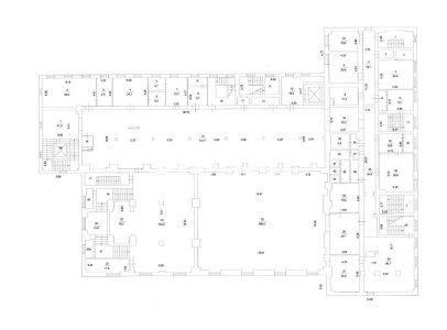
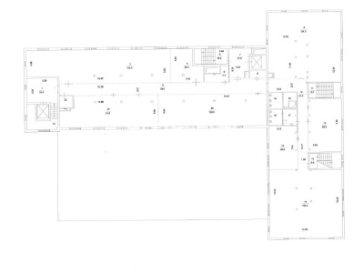
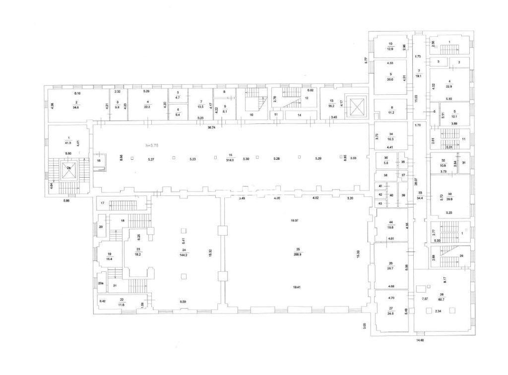
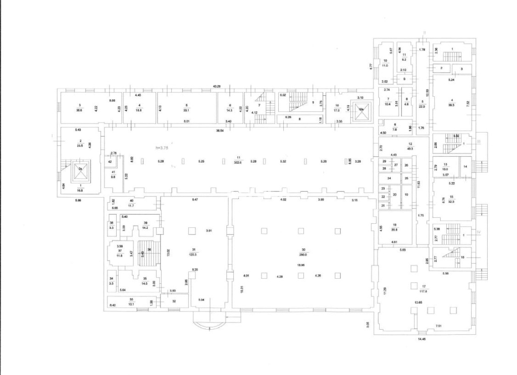
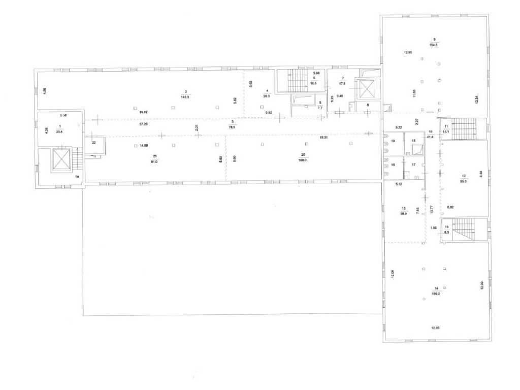
Бизнес-центр "СавеловГрад", 7400 м2

Офис
Савеловская / 10 мин. пеш. Складочная ул, д 1 стр 15, Москва
  • Общее
  • Коммерческие условия
Тип сделки Продажа
Назначение Офис
Площадь блока, м2 7400
Деление от, м2 -
Этаж Здание целиком
Состояние помещений С отделкой
Ставка, м2 135 135 р
Стоимость за блок 1 000 000 000 р
НДС Включен в ставку
Не нашли подходящей площади? Оставьте запрос