Офис / ПСН
Павелецкая / 5 мин. пеш.
Космодамианская наб, д 52 стр 1, Москва
- Общее
- Коммерческие условия
| Тип сделки | Аренда |
| Назначение | Офис |
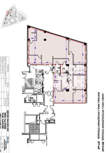
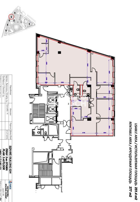
| Площадь блока, м2 | 274 |
| Деление от, м2 | - |
| Этаж | 3 |
| Состояние помещений | С отделкой |
| Ставка, м2/год | 576 $ |
| Стоимость в месяц | 13 152 $ |
| Операционные платежи | Фиксированные |
| Коммунальные платежи | Включены в ставку |
| НДС | Включен в ставку |
Не нашли подходящей площади? Оставьте запрос