Найти готовый к въезду офис

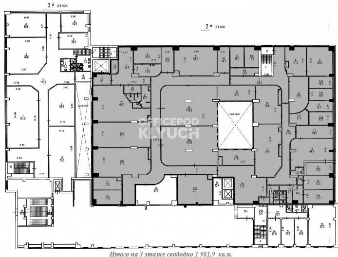
Бизнес-центр "Пост Плаза", 1982 м2

Офис
Электрозаводская / 10 мин. пеш. Почтовая Б. ул, д 26В стр 2, Москва
  • Общее
  • Коммерческие условия
Тип сделки Аренда
Назначение Офис
Площадь блока, м2 1982
Деление от, м2 -
Этаж 3
Состояние помещений С отделкой
Ставка, м2/год 13 200 р
Стоимость в месяц 2 180 090 р
Операционные платежи Фиксированные
Коммунальные платежи По факту
НДС Включен в ставку
Не нашли подходящей площади? Оставьте запрос