Офис
Краснопресненская / 5 мин. пеш.
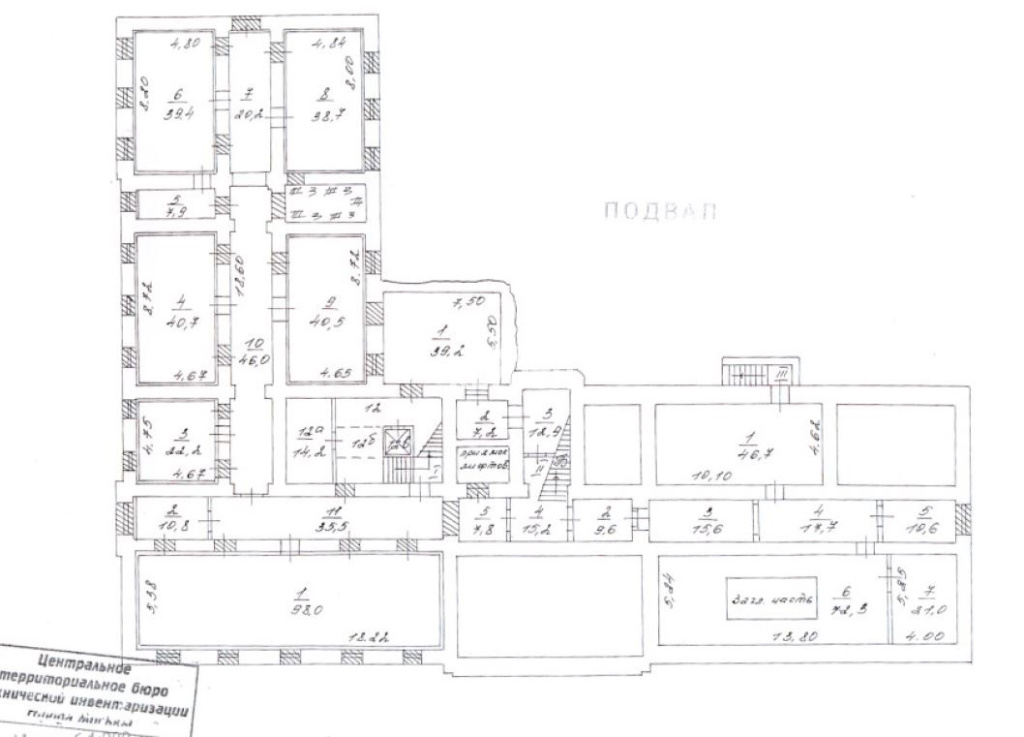
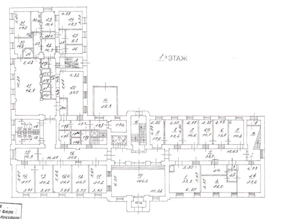
Грузинская Большая ул, д 12 стр 2, Москва
- Общее
- Коммерческие условия
| Тип сделки | Продажа |
| Назначение | Офис |
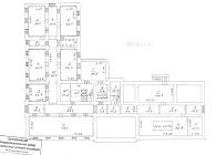
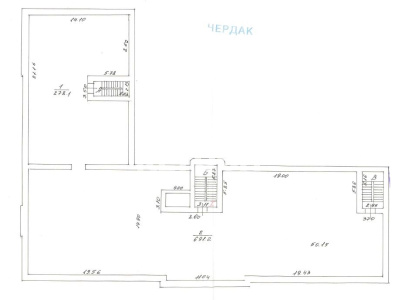
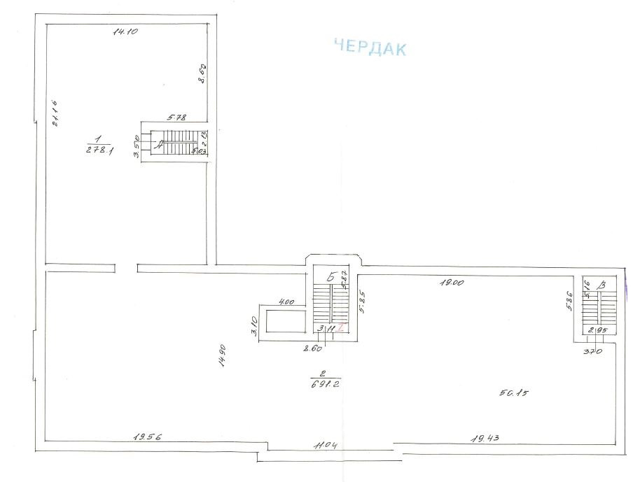
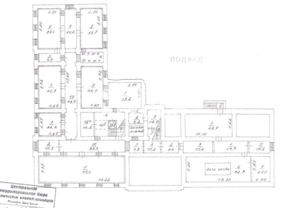
| Площадь блока, м2 | 5883 |
| Деление от, м2 | - |
| Этаж | Здание целиком |
| Состояние помещений | С отделкой |
| Ставка, м2 | По запросу |
| Стоимость за блок | По запросу |
| НДС | Включен в ставку |
Не нашли подходящей площади? Оставьте запрос









