Найти готовый к въезду офис

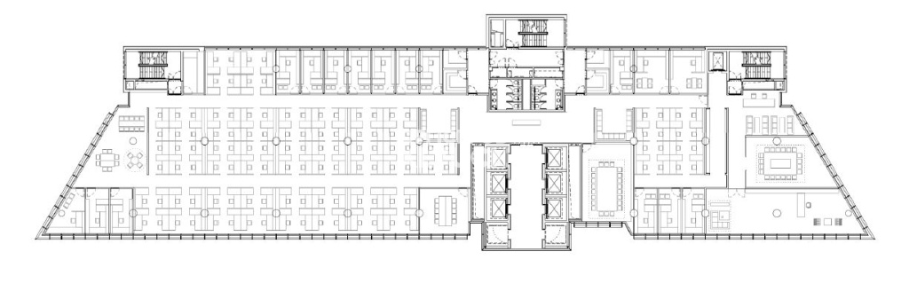
Бизнес-центр "Mebe One Khimki Plaza", 1829 м2

Офис / ПСН
Планерная, Речной вокзал / более 15 мин. тр. Ленинградская ул, д 25, г Химки
  • Общее
  • Коммерческие условия
Тип сделки Аренда
Назначение Офис
Площадь блока, м2 1829
Деление от, м2 -
Этаж 10
Состояние помещений Без отделки
Ставка, м2/год 16 500 р
Стоимость в месяц 2 514 325 р
Операционные платежи Включены в ставку
Коммунальные платежи По факту
НДС Включен в ставку
Не нашли подходящей площади? Оставьте запрос

Другие помещения в здании