Найти готовый к въезду офис

Бизнес-центр "Легенда Цветного", 1767 м2

Офис / ПСН
Трубная, Цветной бульвар / 3 мин. пеш. Цветной б-р, д 2, Москва
  • Общее
  • Коммерческие условия
Тип сделки Продажа
Назначение ПСН
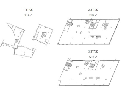
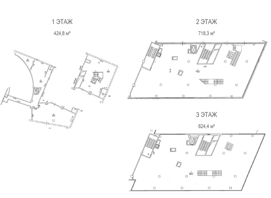
Площадь блока, м2 1767
Деление от, м2 -
Этаж Многоярусный блок
Состояние помещений С отделкой
Ставка, м2 По запросу
Стоимость за блок По запросу
НДС Включен в ставку
Не нашли подходящей площади? Оставьте запрос