Найти готовый к въезду офис

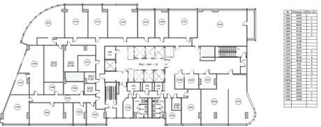
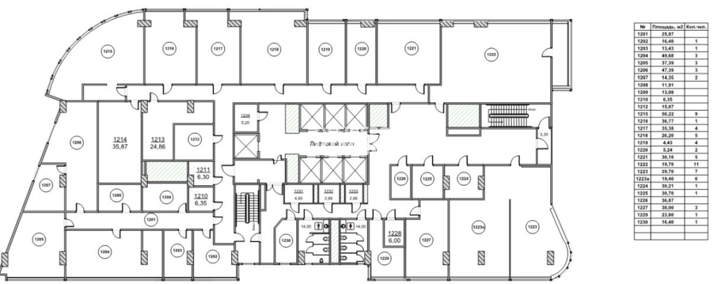
Бизнес-центр "Gazoil Plaza", 1338 м2

Офис
Новые черемушки / 15 мин. пеш. Намёткина ул, д 12А, Москва
  • Общее
  • Коммерческие условия
Тип сделки Аренда
Назначение Офис
Площадь блока, м2 1338
Деление от, м2 -
Этаж 12
Состояние помещений С отделкой
Ставка, м2/год 25 000 р
Стоимость в месяц 2 787 500 р
Операционные платежи Включены в ставку
Коммунальные платежи По факту
НДС Включен в ставку
Не нашли подходящей площади? Оставьте запрос