Офис
Новые черемушки, Улица Новаторов ТПК (строящаяся) / 5 мин. пеш.
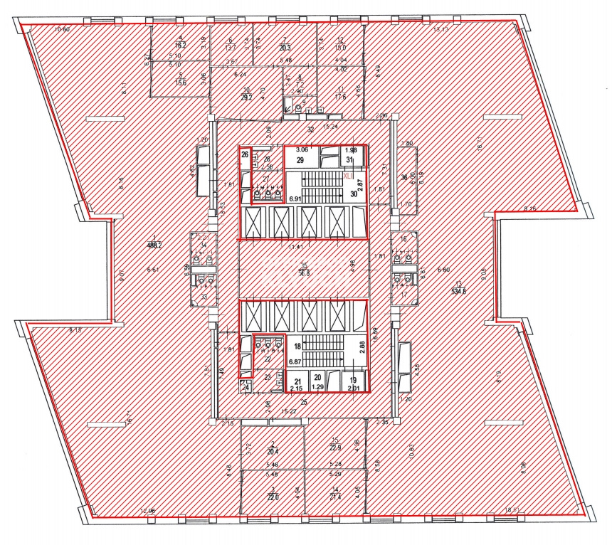
Академика Пилюгина ул, д 22, Москва
- Общее
- Коммерческие условия
| Тип сделки | Аренда |
| Назначение | Офис |
| Площадь блока, м2 | 1765 |
| Деление от, м2 | - |
| Этаж | 11 |
| Состояние помещений | С отделкой |
| Ставка, м2/год | 24 000 р |
| Стоимость в месяц | 3 529 800 р |
| Операционные платежи | Фиксированные |
| Коммунальные платежи | По факту |
| НДС | Включен в ставку |
Не нашли подходящей площади? Оставьте запрос


